Nuove costruzioni e ristrutturazioni

Attico Venezia Lido

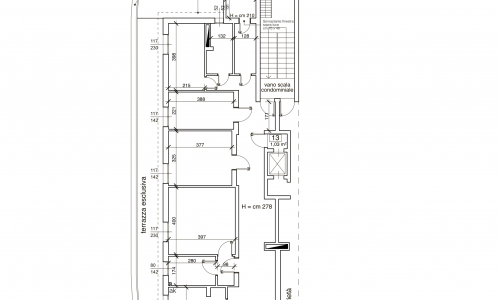
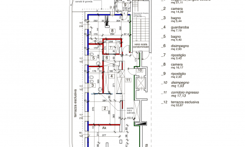
    Progettazione e direzione lavori: ristrutturazione di un attico in un edificio residenziale plurifamialiare a Venezia, Lido.

  • Anno
    2022/2023
  • Città
    Venezia
  • Indirizzo
    Lungomare Marconi, 90
Interni

Progettazione e direzione lavori