Nuove costruzioni e ristrutturazioni

Edifici residenziali Fucina in Maerne di Martellago

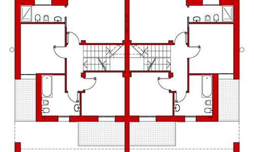
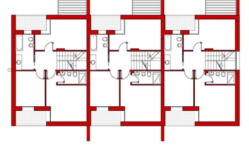
    Progettazione e direzione lavori delle opere di realizzazione di 2 edifici residenziali costituiti da complessivi 5 alloggi all'interno del P.U.A. denominato Planivolumetrico la Fucina.

  • Anno
    2006/2010
  • Città
    Maerne di Martellago
  • Indirizzo
    Via Roviego
Interni

Progettazione e direzione lavori