Nuove costruzioni e ristrutturazioni

Ampliamento edificio residenziale Marghera

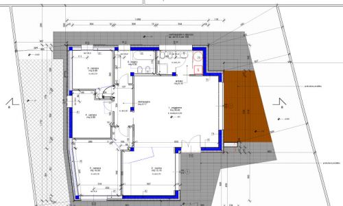
    Progetto e direzione lavori delle opere di ristrutturazione ed ampliamento di un edificio residenziale unifamiliare.

  • Anno
    2012/2014
  • Città
    Marghera
  • Indirizzo
    Via VI Ottobre
Interni

Progettazione e direzione lavori