Nuove costruzioni e ristrutturazioni

Edificio residenziale da 15 alloggi

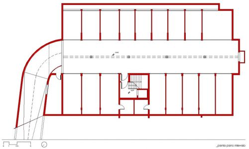
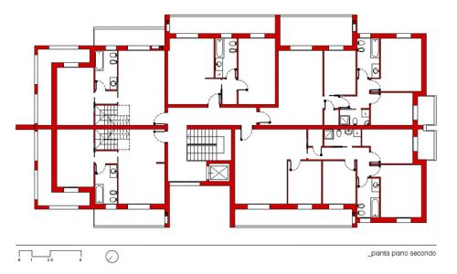
    Progettazione e direzione lavori delle opere di realizzazione di un edificio ad uso residenziale composto da 15 alloggi.

  • Anno
    2005/2007
  • Città
    Chirignago
  • Indirizzo
    Via Asseggiano
Interni

Progettazione e direzione lavori