Nuove costruzioni e ristrutturazioni

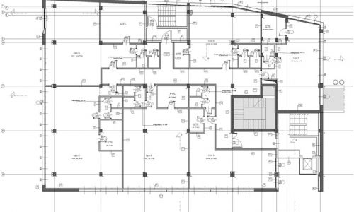
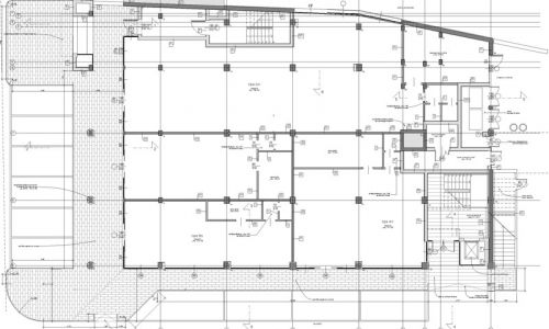
Ristrutturazione di un edificio ad uso direzionale e commerciale Spinea

    Progettazione e direzione lavori delle opere di ristrutturazione di un edificio ad uso direzionale e commerciale [ex mobilificio Corò] con creazione di 2 unità commerciali e 12 unità direzionali.

  • Anno
    2003/2008
  • Città
    Spinea
  • Indirizzo
    Via Alfieri n°1