Progetti e concorsi

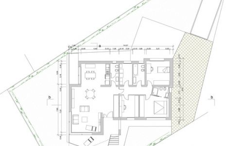
Ristrutturazione ed ampliamento di un edificio residenziale unifamiliare

    Progettazione definitiva ed esecutiva per la ristrutturazione ed ampliamento di un edificio residenziale unifamiliare.

  • Anno
    2013
  • Città
    Venezia
  • Indirizzo
    Mestre via Lussinpiccolo

Progettazione preliminare