Home
Lo studio
Servizi
Realizzazioni
Nuove Costruzioni e ristrutturazioni
Restauri e interventi su edifici storici
Attività commerciali e direzionali
Allestimenti di Esposizioni d'Arte
Progetti e concorsi
Curriculum
Contatti
Home
Lo studio
Servizi
Realizzazioni
Nuove Costruzioni e ristrutturazioni
Restauri e interventi su edifici storici
Attività commerciali e direzionali
Allestimenti di Esposizioni d'Arte
Progetti e concorsi
Curriculum
Contatti
+39 0415084026
Home
Progetti concorsi
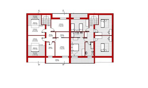
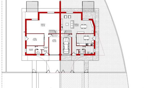
Bifamiliare Area Perequata n. 7
Progetti e concorsi
Area Perequata n. 7
Progetto di 2 edifici bifamiliari tipo da realizzarsi nell'Area Perequata n. 7.
Anno
2008
Città
Montegrotto Terme
Indirizzo
via San Daniele
Progettazione preliminare
Home
Home
Lo studio
Servizi
Contatti
Realizzazioni
Nuove realizzazioni e ristrutturazioni
Restauri e interventi su edifici storici
Attività commerciale e direzionali
Allestimenti
Progetti e concorsi
Privacy - Informativa
Mappa del sito
Powered by
TECNOSOFT