Progetti e concorsi

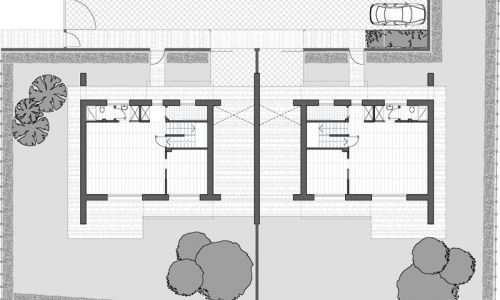
Edificio residenziale bifamiliare

    Progettazione e direzione lavori delle opere di realizzazione di un edificio residenziale bifamiliare.

  • Anno
    2014
  • Città
    Venezia
  • Indirizzo
    Chirignago, via Assegiano

Progettazione preliminare