Restauri e interventi su edifici storici

Facciata sul Rio di San Severo

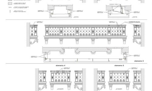
    Progettazione e direzione lavori delle opere di restauro conservativo della facciata sul Rio di San Severo di Palazzo Bon risalente al sec. XVI.

  • Anno
    2002/2005
  • Città
    Venezia
  • Indirizzo
    Castello n°4906/4909
Interni

Progettazione e direzione lavori