Restauri e interventi su edifici storici

Restauro e ristrutturazione di 2 appartamenti

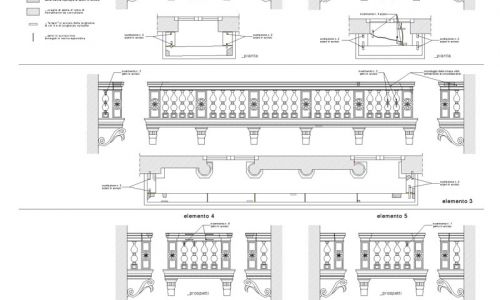
    Progettazione e direzione lavori delle opere di restauro e ristrutturazione di 2 appartamenti al 4° e 5° piano di Palazzo Bon risalente al sec. XVI.

  • Anno
    2009/2010
  • Città
    Venezia
  • Indirizzo
    Castello 4913
Interni

Progettazione e direzione lavori